TD斗式提升机
商品详情
性能特点
技术参数
TD型斗式提升机 TD型斗式提升机产品概述:
TD系列斗式提升机适用于垂直输送粉状、粒状、及小块状的磨吸性较小的散状物料,如粮食、煤、水泥、碎矿石等,提升高度较高40m。TD型按JB3926-85《垂直斗式提升机》标准设计制造,目前国内常用的斗式提升机均为垂直式,较新型。TD型斗式提升机备有四种料斗Q型(浅斗)、H型(弧底斗)、ZD型(中深斗)SD型(深斗)。
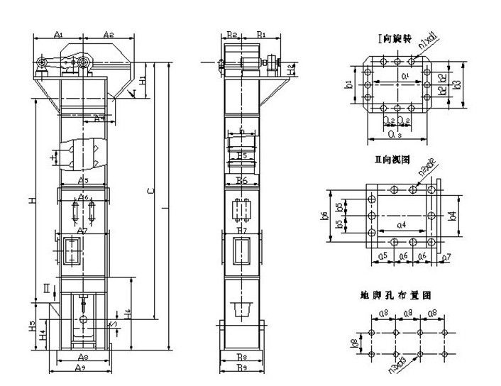
TD型斗式提升机的基本结构:
TD型斗式提升机由运行部分(料斗与牵引胶带),带有传动滚筒的上部区段,带有拉紧滚筒的下部区段,中间机壳,驱动装置,逆止制动装置等组成,适用于向上输送松散密度ρ<1.5t/m3粉状、粒状和小块状的无磨琢性和半磨琢性散状物料,如煤、砂、焦末、水泥、碎矿石等。
TD型斗式提升机结构形式:传动装置TD型斗提升机的传动装置有两种形式分别配有YZ型减速器ZQ(或YY)型减速器。YZ型轴减速器直接装在主轴轴头上,省去了传动平台、联轴器等,使结构紧凑、重量轻,而且其内部带有异型辊逆止器,逆止可靠。该减速器噪音低,运转平稳,并随主轴浮动,可消除安装应力。
TD型斗式提升机特点:
1.驱动功率小,采用流入式喂料、诱导式卸料、大容量的料斗密集型布置.在物料提升时几乎无回料和挖料现象,因此无效功率少。
2.提升范围广,这类提升机对物料的种类、特性要求少,不但能提升一般粉状、小颗粒状物料,而且可提升磨琢性较大的物料.密封性好,环境污染少。
3.运行可靠性好,优良的设计原理和加工方法,确保了整机运行的可靠性,无故障时间超过2万小时。提升高度高.提升机运行平稳,因此可达到较高的提升高度。
4.使用寿命长,提升机的喂料采取流入式,无需用斗挖料,材料之间很少发生挤压和碰撞现象。本机在设计时确保物料在喂料、卸料时少有撒落,减少了机械磨损。
TD系列斗式提升机技术参数表:

说明:1.表中斗容为计算斗容,输送量按填充系数0.6计算得出。
2.斗式提升机料斗用途为:
浅料斗:输送潮湿、易结块、难抛出的物料。如湿沙、湿煤等。
深料斗:输送干燥的、松散的、易抛出的物料。如水泥、煤块、碎石、石英砂等。
TD斗式提升机外形示意图


